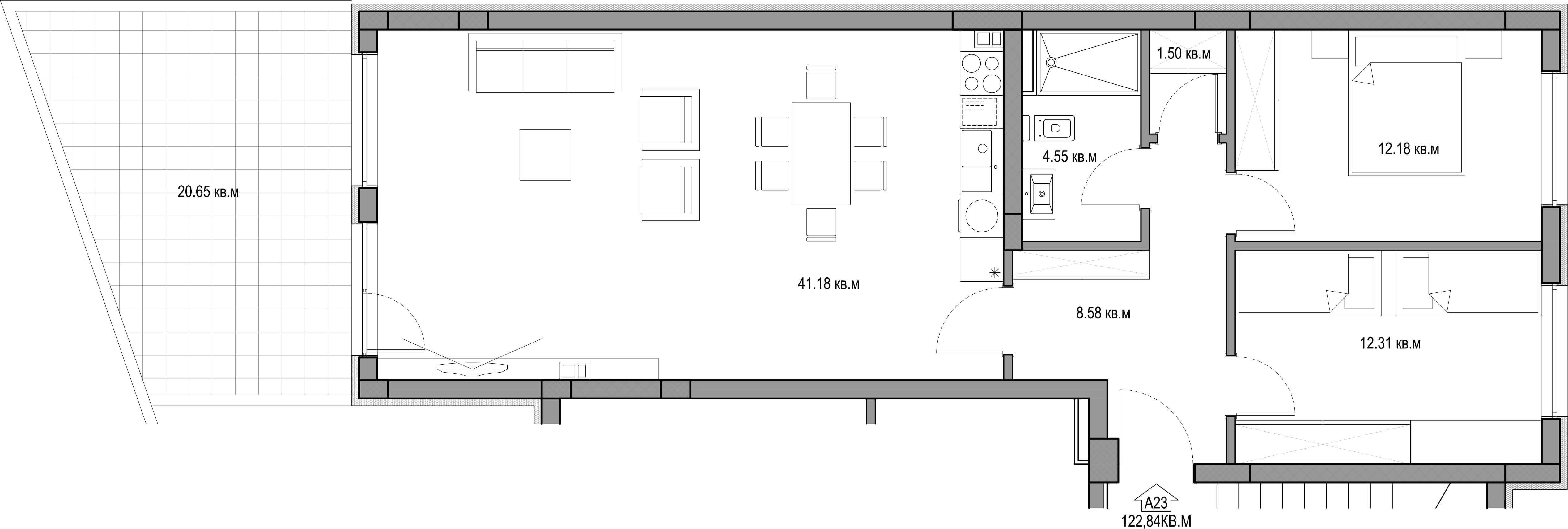
№ 2-23
Вход 2 , Етаж 1
Нашите новини
31 ян.'26
Покупка „на зелено“: 12...
Покупката „на зелено“ дава предимство, което готовите имоти рядко могат да предложат: избор на етаж,...
30 ян.'26
Скрити разходи при покупка...
Когато човек търси нов апартамент, почти винаги сравнява цени „на квадрат“, локация, изложение и разпределение....
29 ян.'26
Акт 14, Акт 15...
Когато купувате апартамент в ново строителство, почти винаги ще чуете три „магически“ термина: Акт 14,...