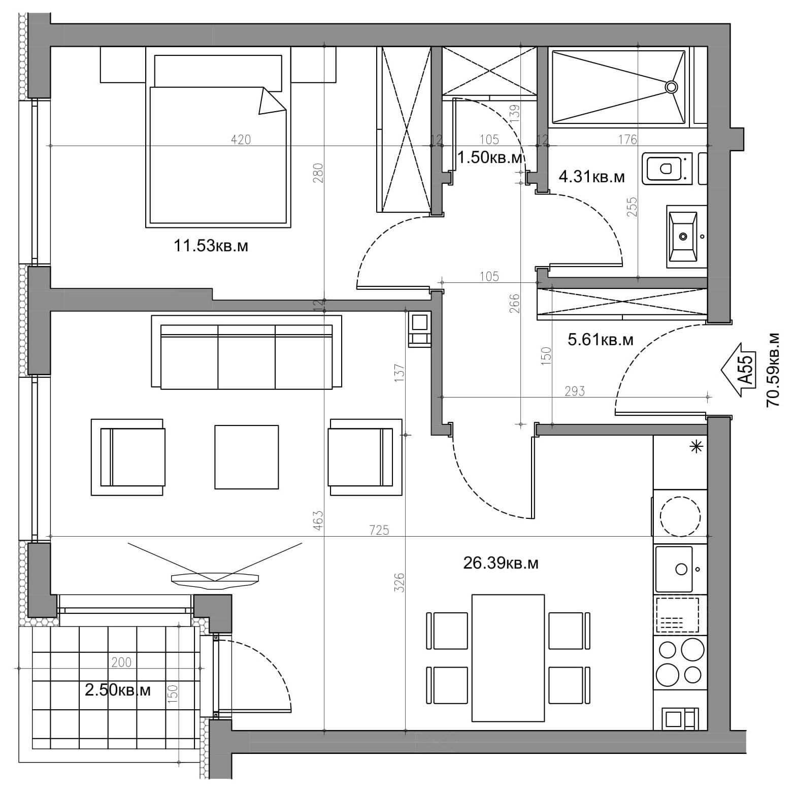
№ 3-55
Вход 3 , Етаж 3

Свържете се
с нас

гр. Варна
бул. Сливница 87

>