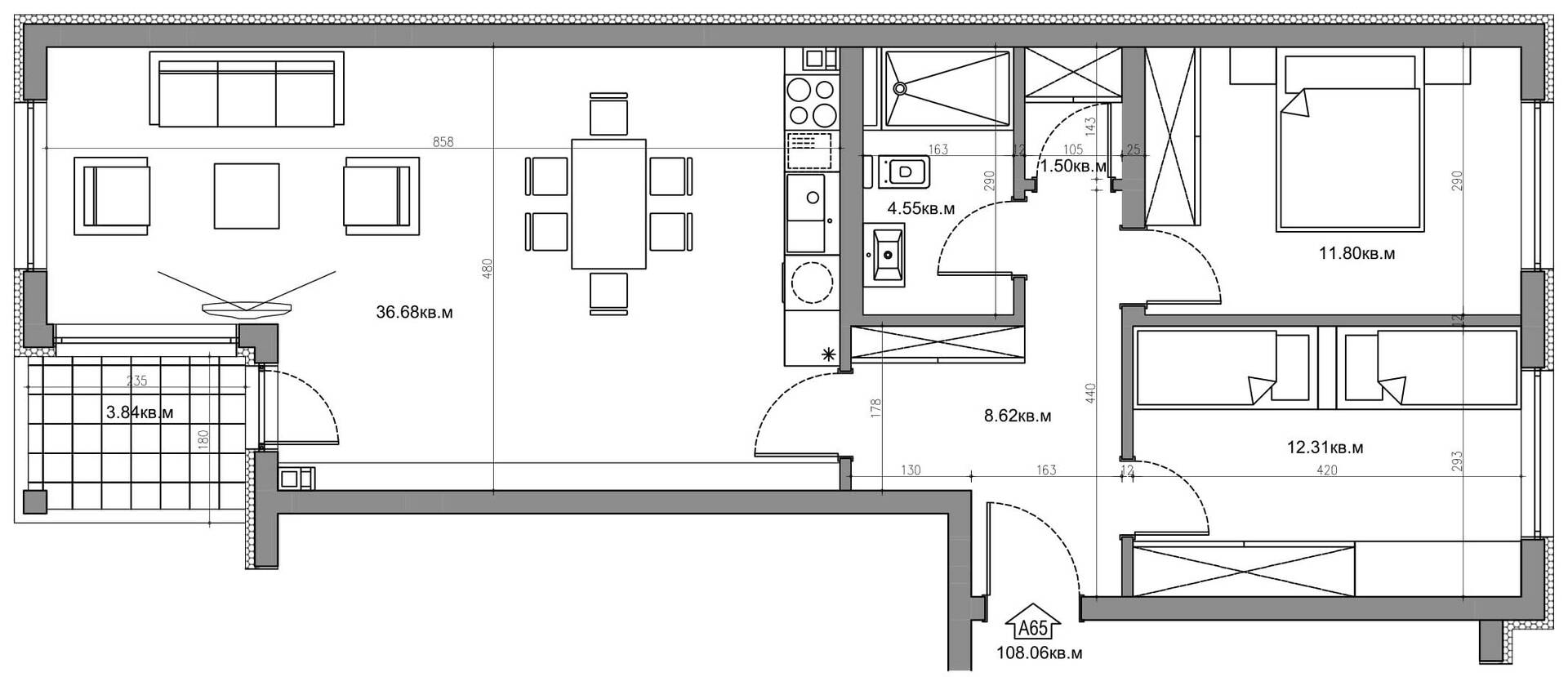
№ 3-65
Вход 3 , Етаж 5

Свържете се
с нас

гр. Варна
бул. Сливница 87

>